Technical drawings

Filter

     RENOLIT ALKORPLAN - General     RENOLIT ALKORPLAN F- Mechanical fastened     RENOLIT ALKORPLAN A- Adhered     RENOLIT ALKORPLAN L- Ballasted     RENOLIT ALKORGREEN     RENOLIT ALKORDESIGN     RENOLIT ALKORSOLAR    

RENOLIT ALKORPLAN - General

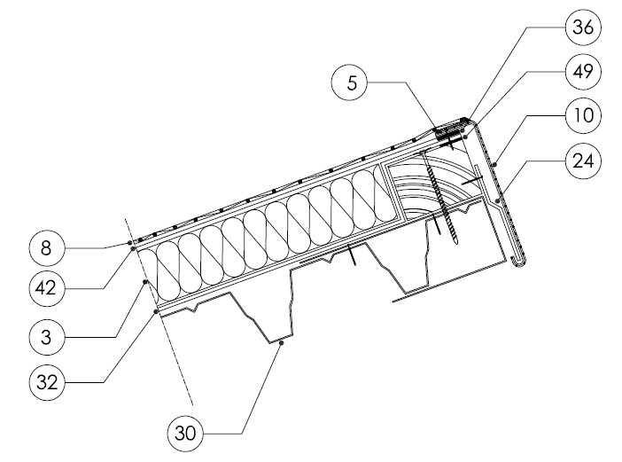
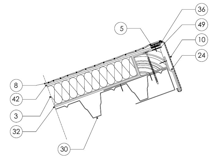
Rooflight Kerb Detail

PDF

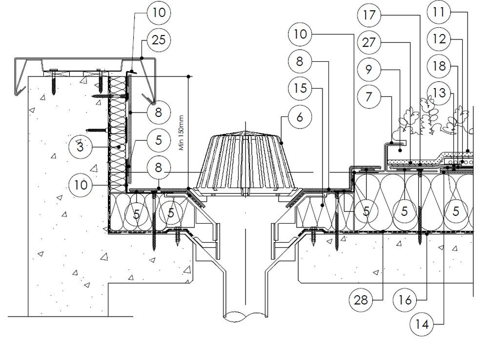
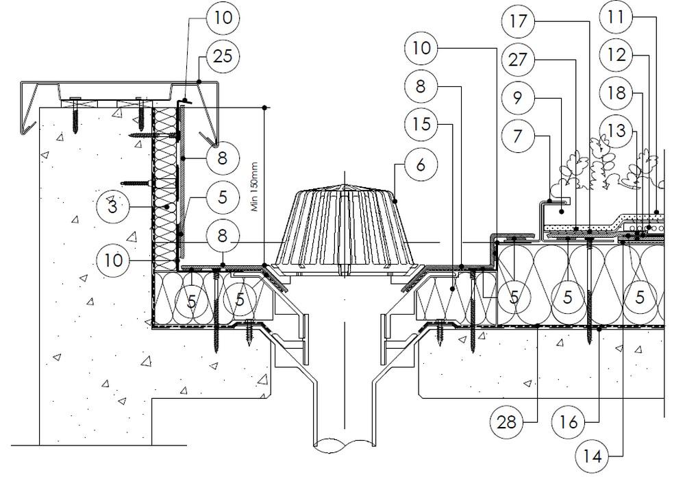
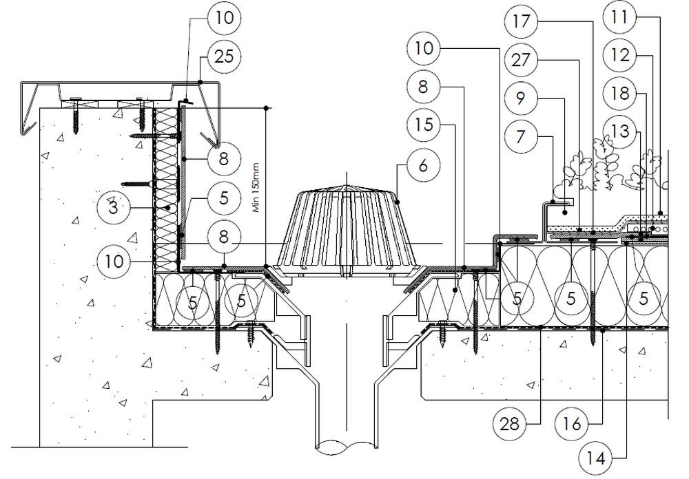
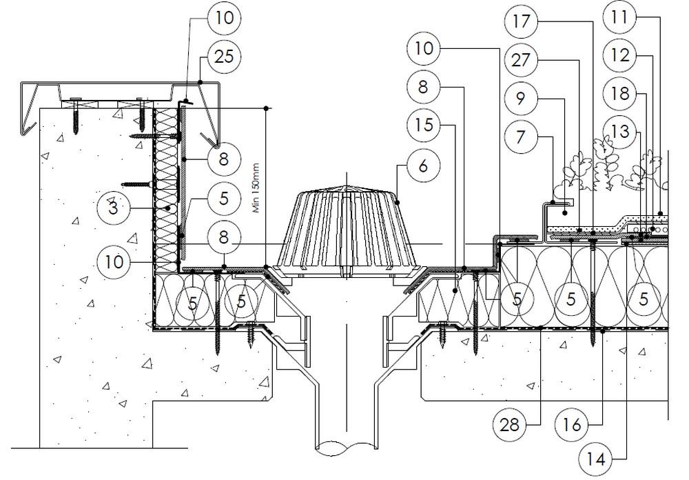
Metal Rainwater Outlet

DWG 95 | DWG 97 | DWG 2000 | PDF

PVC-u Rainwater Outlet

DWG 95 | DWG 97 | DWG 2000 | PDF

Penetration for all ALKOR Systems

DWG 95 | DWG 97 | DWG 2000 | PDF

Balcony Outlet

DWG 95 | DWG 97 | DWG 2000 | PDF

Drip Section to Perimeter Gutter with timber batten

DWG 2000 | PDF

Drip Section to Perimeter Gutter without timber batten

DWG 2000 | PDF

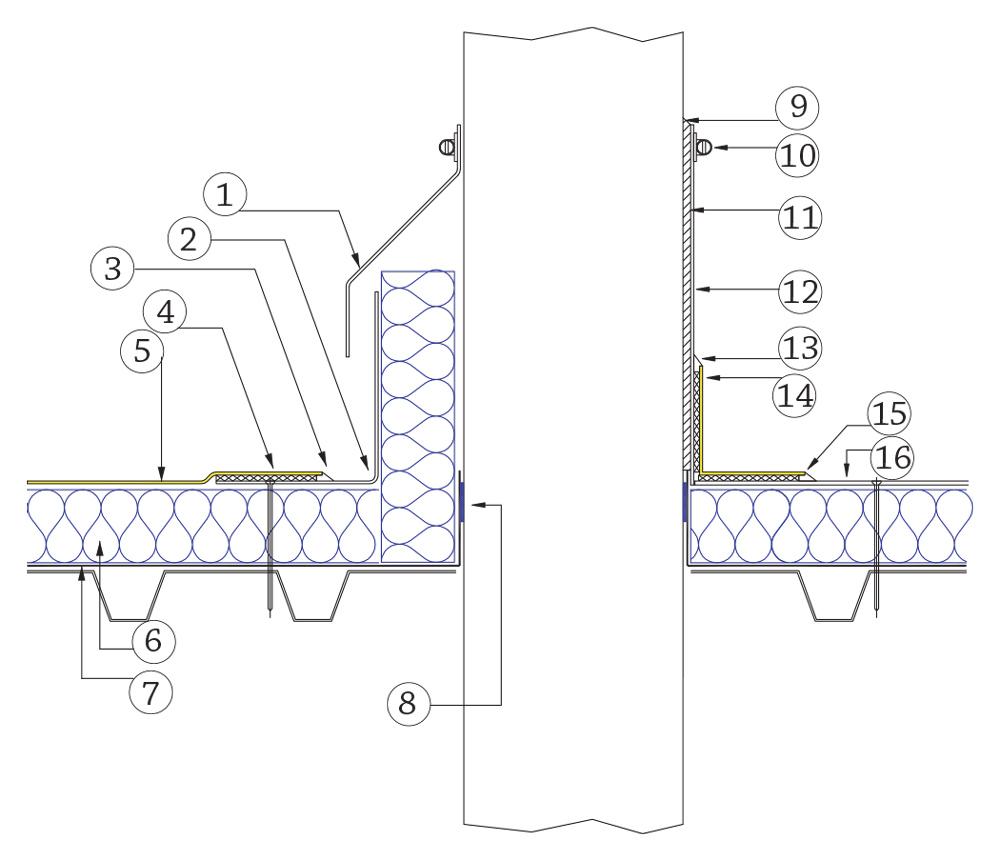
Upstand detail below external wall insulated system

DWG | PDF

Reduced Upstand - Door Threshold Detail

DWG | PDF

RENOLIT ALKORPLAN - Felt Interface Detail (Building Extension)

DWG | PDF

RENOLIT ALKORPLAN F- Mechanical fastened

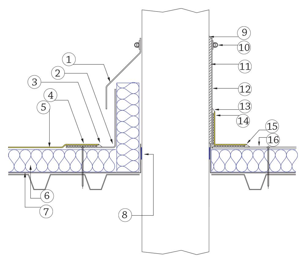
Typical Upstand Detail

DWG 95 | DWG 97 | DWG 2000 | PDF

Mechanically Fixed Seam

DWG 95 | DWG 97 | DWG 2000 | PDF

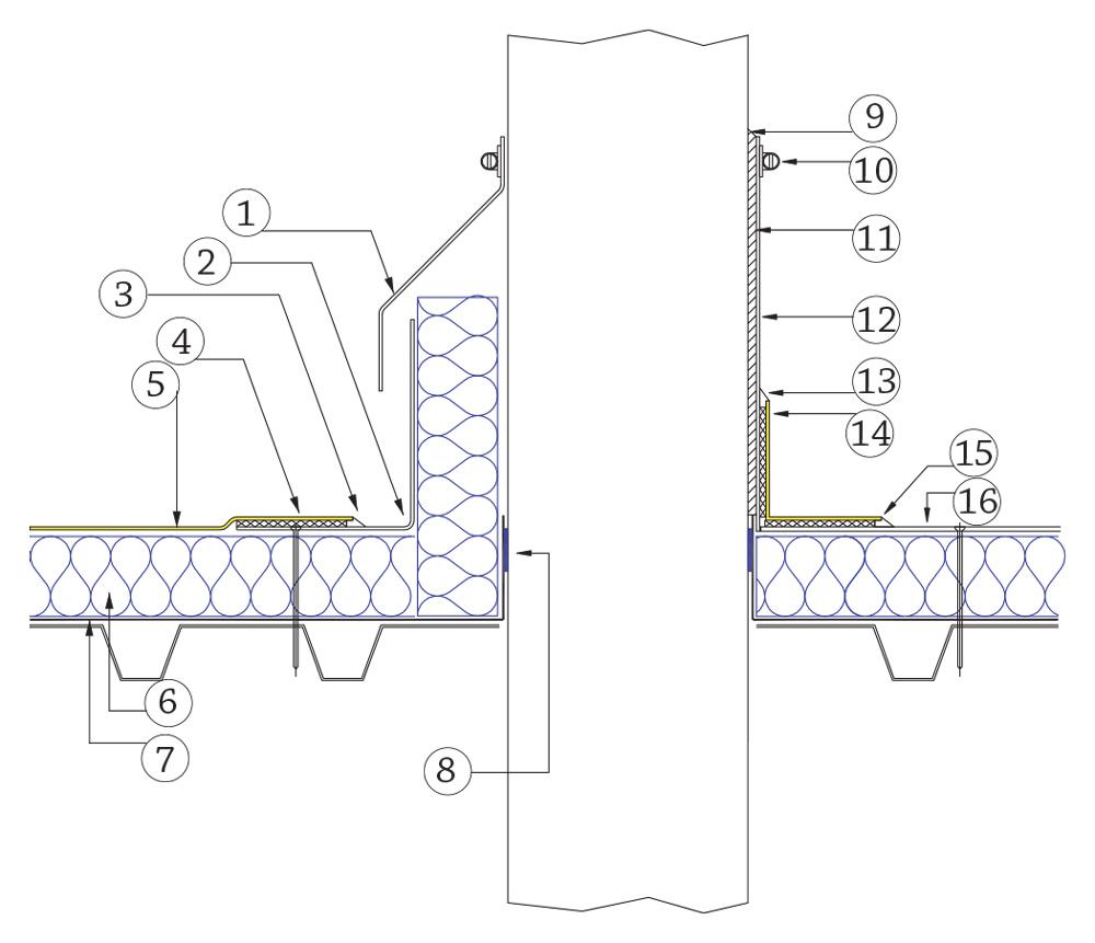
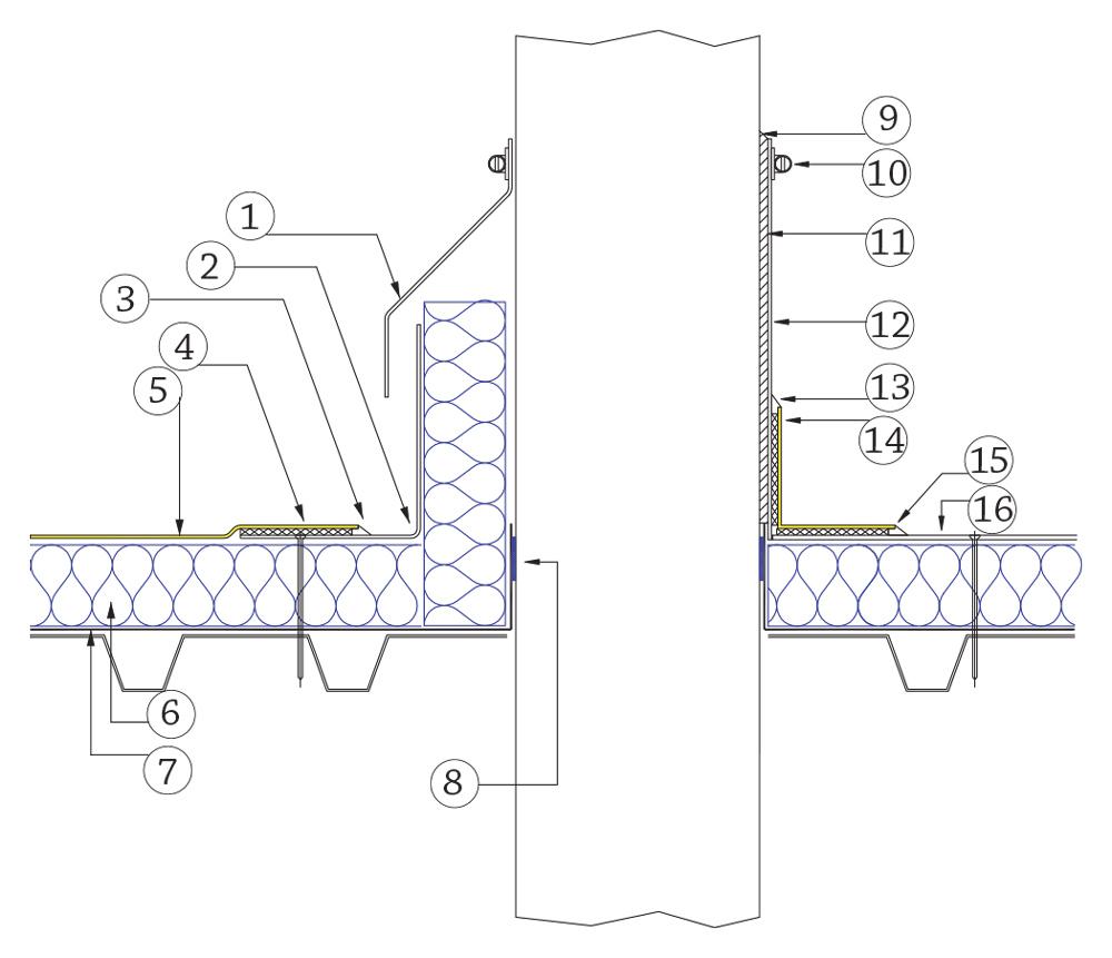
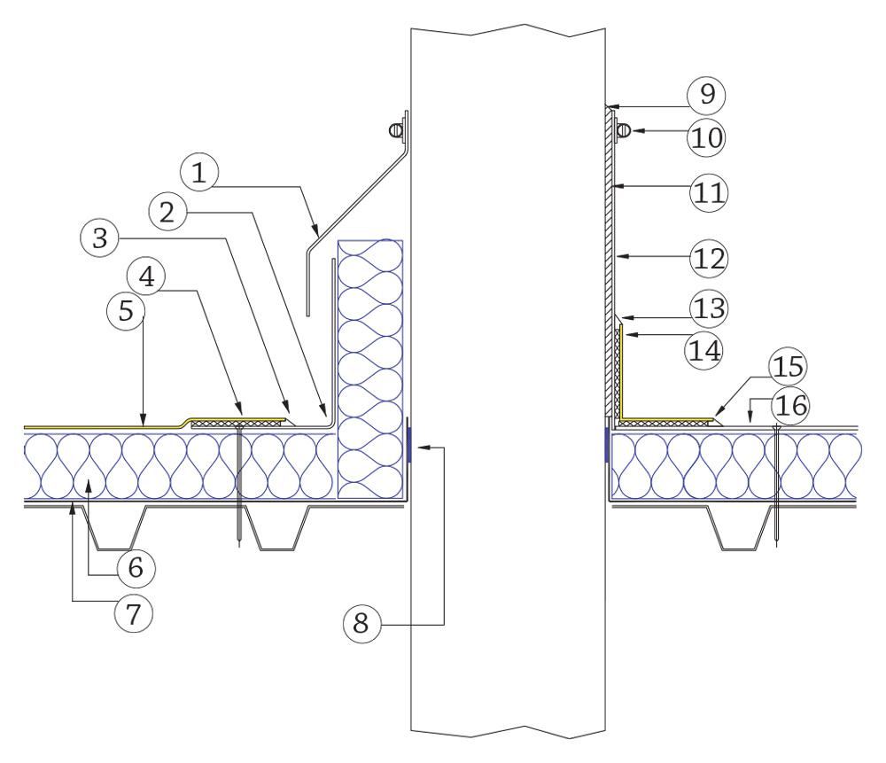
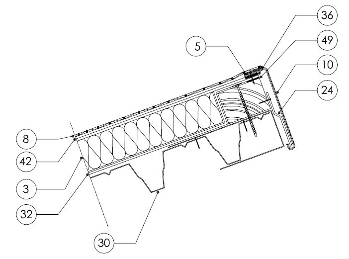
Typical Wall Abutment

DWG 95 | DWG 97 | DWG 2000 | PDF

Water-Check Kerb

DWG 95 | DWG 97 | DWG 2000 | PDF

Walkway (method 1)

DWG 95 | DWG 97 | DWG 2000 | PDF

Typical Movement Joint

DWG 95 | DWG 97 | DWG 2000 | PDF

Typical Upstand to Base of Tiled Roof

DWG 95 | DWG 97 | DWG 2000 | PDF

Upstand and capping detail

DWG | PDF

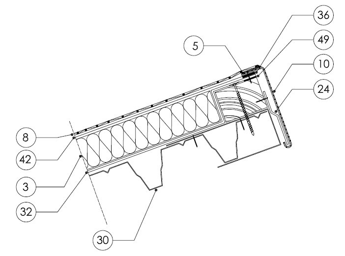
Perimeter upstand Detail with Drip Edge

DWG | PDF

Upstand Detail 3

DWG | PDF

Typical Wall Abutment

DWG | PDF

Perimeter Upstand Detail with Drip Edge 2

DWG | PDF

Perimeter Upstand Detail 2

DWG | PDF

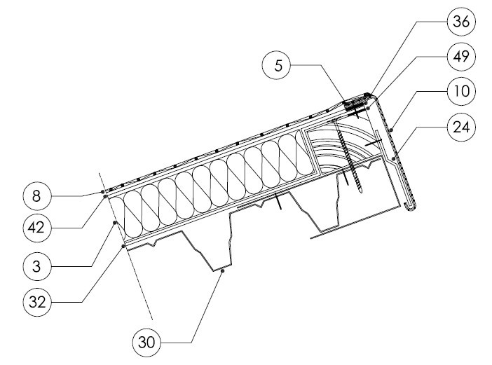
Tiled or Slated Mansard Detail, Warm Roof 1

DWG | PDF

Tiled or Slated Mansard Detail, Warm Roof 2

DWG | PDF

Perimeter drip edge detail

DWG | PDF

Upstand detail 1

DWG | PDF

RENOLIT ALKORPLAN A- Adhered

Fully Bonded Seam

DWG 95 | DWG 97 | DWG 2000 | PDF

Typical Abutment Detail

DWG 95 | DWG 97 | DWG 2000 | PDF

Typical Upstand to Base of Tiled Roof

DWG 95 | DWG 97 | DWG 2000 | PDF

Box Gutter

DWG 95 | DWG 97 | DWG 2000 | PDF

RENOLIT ALKORPLAN L- Ballasted

Warm Roof Paved with Gravel Margin

DWG 95 | DWG 97 | DWG 2000 | PDF

Inverted Roof-Paved with Gravel Margin

DWG 95 | DWG 97 | DWG 2000 | PDF

Garden Roof with Gravel Margin

DWG 95 | DWG 97 | DWG 2000 | PDF

PVC-U Rainwater Outlet

DWG 95 | DWG 97 | DWG 2000 | PDF

Loose Laid Ballasted Seam

DWG 95 | DWG 97 | DWG 2000 | PDF

RENOLIT ALKORGREEN

Perimiter edge upstand detail

DWG 2000 | PDF

Door thresh detail

DWG 2000 | PDF

Strip gulley detail

DWG 2000 | PDF

Wall upstand detail

DWG | PDF

Roof outlet balcony

DWG 2000 | PDF

Roof outlet vert. junction wall

DWG 2000 | PDF

Latchway post detail

DWG 2000 | PDF

SVP pipe penetration detail

DWG 2000 | PDF

Water check kerb detail

DWG 2000 | PDF

Outlet sump detail

DWG 2000 | PDF

Typical roof build up

DWG 2000 | PDF

Ballast stop detail

DWG 2000 | PDF

Alkorlight rooflight upstand detail

DWG 2000 | PDF

Plant plinth detail

DWG 2000 | PDF

RENOLIT ALKORDESIGN

Detail of Direction Change

DWG 2000 | PDF

Detail of Valley Gutter

DWG 2000 | PDF

Drip Section to Perimeter Gutter

DWG 2000 | PDF

Monopitch Roof Edge Detail

DWG 2000 | PDF

Ridge detail

DWG 2000 | PDF

Roof Penetration

DWG 2000 | PDF

Verge Detail

DWG 2000 | PDF

Water check kerb

DWG 2000 | PDF

Velux detail

DWG 2000 | PDF

Detail of Valley Gutter (2)

DWG 2000 | PDF

Upstand with wall cover

DWG 2000 | PDF

Upstand with wall cover - Glued

DWG 2000 | PDF

Connection roof with wall

DWG 2000 | PDF

Ridge detail (2)

DWG 2000 | PDF

RENOLIT ALKORSOLAR

Alkorsolar Carrier Detail

DWG | PDF

RENOLIT ALKORSOLAR Carrier detail - Alkorplan F

DWG | PDF

By continuing, I agree to the RENOLIT Privacy Policy*

JPG DWG PDF
 mail@mail.com,mail2@mail.com,...

 Cc