Technical drawings

Filtrer

     RENOLIT ALKORPLAN - Général     RENOLIT ALKORPLAN F - Fixée mécaniquement     RENOLIT ALKORPLAN A - Système adhérent     RENOLIT ALKORPLAN L - Sous lestage     RENOLIT ALKORGREEN     RENOLIT ALKORDESIGN    

RENOLIT ALKORPLAN - Général

Fixation mécanique intermédiaire (Relevé non-collé >50cm)

PDF

Fixation mécanique intermédiaire (Relevé isolé non-collé >50cm)

PDF

Entrée d'eau pluviale en PVC rigide

PDF

RENOLIT ALKORPLAN F - Fixée mécaniquement

Recouvrement des lés (sens longitudinal)

DWG 95 | DWG 97 | DWG 2000 | PDF

Dispositions des lés

DWG 2000 | PDF

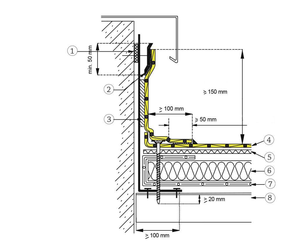
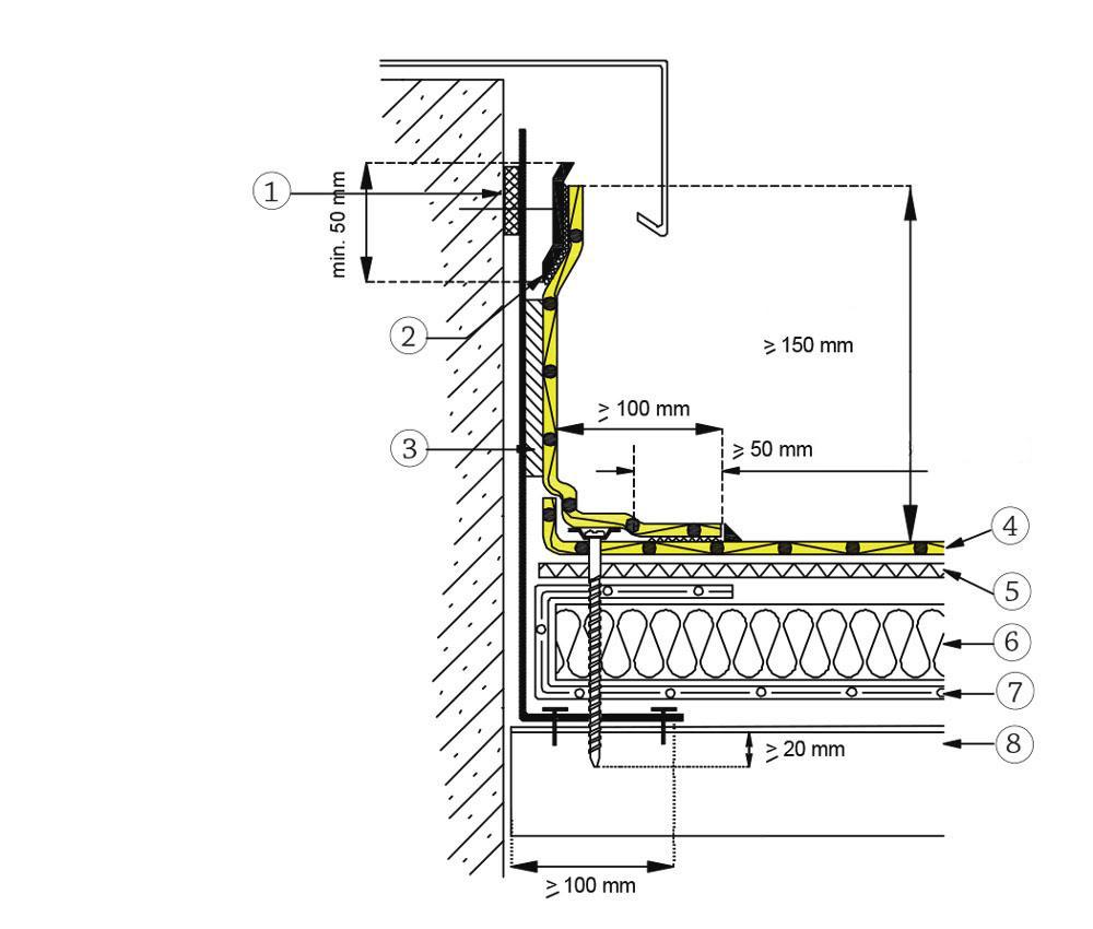
Relevé contre mur (1)

DWG 2000 | PDF

Rive (collé) avec finition d'un couvre-mur

DWG 2000 | PDF

Rive (collé) avec finition d'une tôle colaminée

DWG 2000 | PDF

Entrée d'eau pluviale en PVC rigide

DWG 2000 | PDF

Traversée de toiture

DWG 2000 | PDF

RENOLIT ALKORPLAN A - Système adhérent

Acrotère avec gouttière

PDF

Raccordement au lanterneau

PDF

Entrée d'eau pluviale en PVC rigide

PDF

Traversée de toiture

PDF

RENOLIT ALKORPLAN L - Sous lestage

Recouvrement des lés

DWG 95 | DWG 97 | DWG 2000 | PDF

Entrée d'eau pluviale en PVC rigide

PDF

Traversée de toiture

PDF

RENOLIT ALKORGREEN

Connexion au chemin de circulation avec dalles sur plots

DWG | PDF

Connexion au chemin de circulation en brique

DWG | PDF

Détail de relevé avec trop plein

DWG | PDF

Détail de rive avec couvertine

DWG | PDF

Evacuation d'eau

DWG | PDF

Le système en 3D

DWG | PDF

Relevé contre costière de lanterneau

DWG | PDF

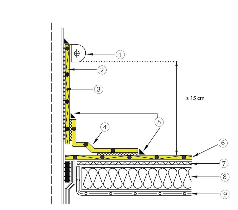
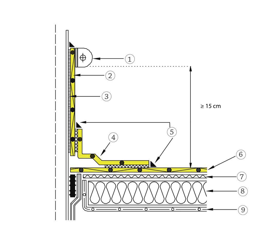
Relevé contre mur en brique

DWG | PDF

RENOLIT ALKORDESIGN

Détail toiture mansarde

DWG 2000 | PDF

Détail de la noue

DWG 2000 | PDF

Acrotère avec gouttière

DWG 2000 | PDF

Faîtage d'une toiture en appentis

DWG 2000 | PDF

Faîtage versant débordant

DWG 2000 | PDF

Détail du faîte

DWG 2000 | PDF

Traversée de toiture

DWG 2000 | PDF

Finition d'une rive (toitrue à pente + 10°)

DWG 2000 | PDF

Finition Velux

PDF

Rive et couvre-mur

DWG 2000 | PDF

Rive collé et couvre-mur

DWG 2000 | PDF

Raccordement avec pignon (toiture à pente >10°)

DWG 2000 | PDF

Raccordement Velux

PDF

Détail du faîte spécial

DWG 2000 | PDF

En poursuivant, j'accepte la politique de confidentialité de RENOLIT Belgium *

JPG DWG PDF
 mail@mail.com,mail2@mail.com,...

 Cc