Technical drawings

Filter

     RENOLIT ALKORPLAN F- Fissaggio meccanico     RENOLIT ALKORPLAN A- In aderenza     RENOLIT ALKORGREEN     RENOLIT ALKORDESIGN     RENOLIT ALKORTEC A - In aderenza    

RENOLIT ALKORPLAN F- Fissaggio meccanico

Attraversamento di una copertura

DWG 2000 | PDF

Zona perimetrale con lamiera preformata

DWG 2000 | PDF

variazione di pendenza

DWG 2000 | PDF

RENOLIT ALKORPLAN A- In aderenza

Zone perimetrale con canale di gronda

PDF

RENOLIT ALKORGREEN

Zona perimetrale con coprimuro in lamiera preformata

DWG | PDF

RENOLIT ALKORDESIGN

Raccordo alla scossalina perimetrale ed al canale di gronda

DWG 2000 | PDF

Particolare del colmo

DWG 2000 | PDF

Zona perimetrale con coprimuro in lamiera preformata

DWG 2000 | PDF

Attraversamento di una copertura

DWG 2000 | PDF

Scossalina perimetrale, sezione trasversale

DWG 2000 | PDF

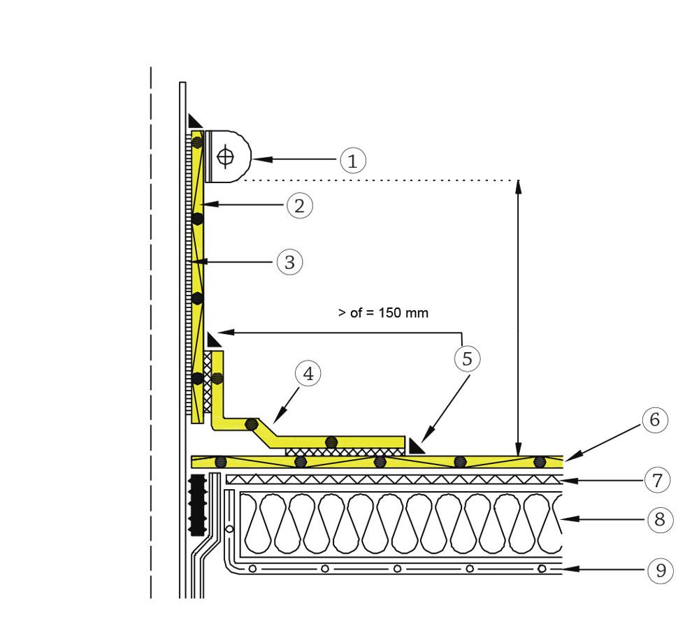
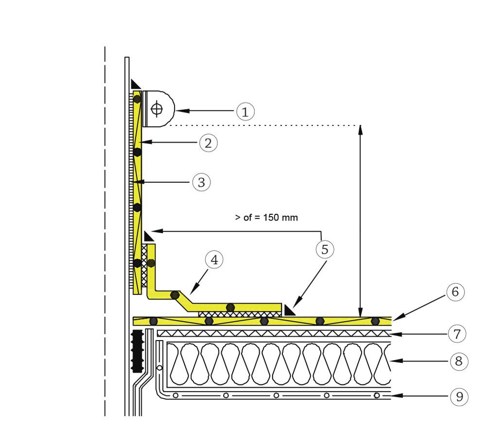
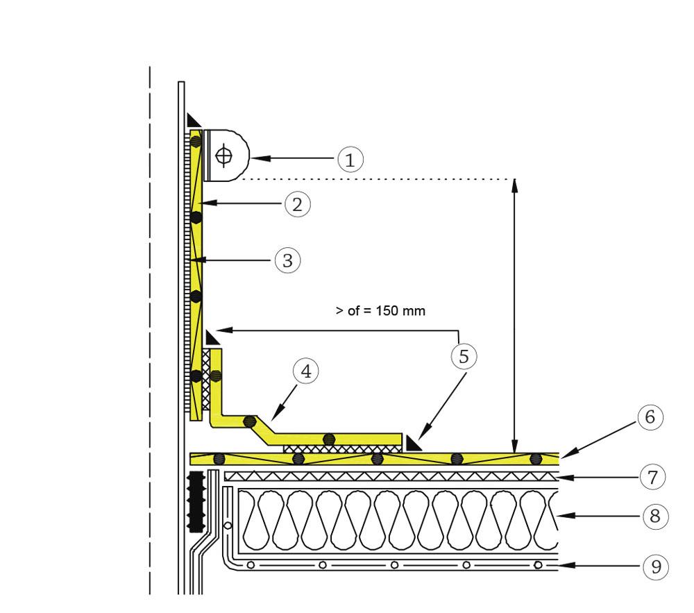
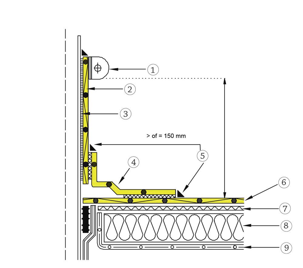
Dettaglio zona perimetrale

DWG 2000 | PDF

Zona perimetrale con canale di gronda

DWG 2000 | PDF

Sezione trasversale (conversa)

DWG 2000 | PDF

Variazione di pendenza

DWG 2000 | PDF

Dettaglio di una copertura a mansarda

DWG 2000 | PDF

RENOLIT ALKORTEC A - In aderenza

Zona perimetrale con canale di gronda

PDF

Proseguedo acetto i Termini sulla tutela della privacy di RENOLIT*

JPG DWG PDF
 mail@mail.com,mail2@mail.com,...

 Cc