Technical drawings

     RENOLIT ALKORPLAN F- Fijado mecánicamente     RENOLIT ALKORPLAN A- Sistema en adherencia     RENOLIT ALKORPLAN L- Sistema en independencia     RENOLIT ALKORGREEN     RENOLIT ALKORDESIGN    

RENOLIT ALKORPLAN F- Fijado mecánicamente

Sistema de colocación

DWG 2000 | PDF

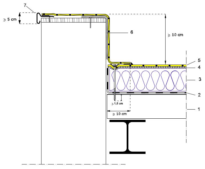
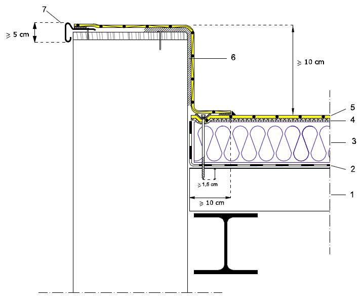
Detallo Peto Bajo

DWG 2000 | PDF

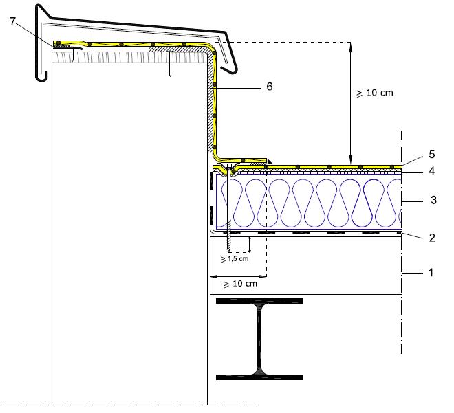
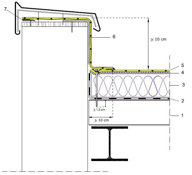
Coronación con perfil colaminado

DWG 2000 | PDF

Coronación con perfil colaminado

DWG 2000 | PDF

RENOLIT ALKORPLAN A- Sistema en adherencia

Detallo Peto Bajo

PDF

Coronación con perfil colaminado

PDF

Coronación con perfil colaminado

PDF

Detalle lucernario

PDF

Desagüe Central de PVC duro

PDF

RENOLIT ALKORPLAN L- Sistema en independencia

Soldadura

DWG 95 | DWG 97 | DWG 2000 | PDF

Detalle Peto Bajo

PDF

Detalle lucernario

PDF

Desagüe Central de PVC duro

PDF

Perimetro con pasatuvo horizontal

PDF

RENOLIT ALKORGREEN

Detalle transitable con plots

DWG | PDF

Detalle transitable con ladrillos

DWG | PDF

Perimetro con pasatuvo horizontal

DWG | PDF

Coronación

DWG | PDF

Desagüe Central

DWG | PDF

Detalle 3D

DWG | PDF

Detalle lucernario

DWG | PDF

Detalle Peto Bajo

DWG | PDF

RENOLIT ALKORDESIGN

Coronación con perfil colaminado

PDF

Detalle de la canaleta

DWG 2000 | PDF

By continuing, I agree to the RENOLIT Privacy Policy*

JPG DWG PDF
 mail@mail.com,mail2@mail.com,...

 Cc