

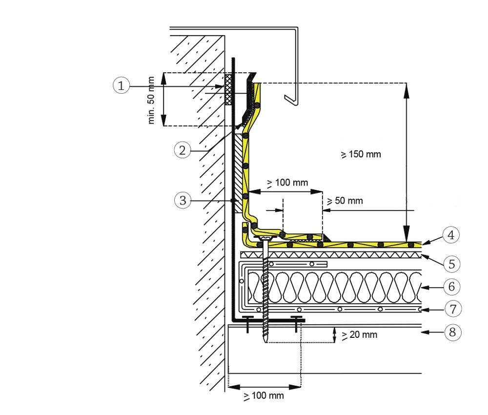
Filtrer
- RENOLIT ALKORPLAN - Général RENOLIT ALKORPLAN F - Fixée mécaniquement RENOLIT ALKORPLAN A - Système adhérent RENOLIT ALKORPLAN L - Sous lestage RENOLIT ALKORGREEN RENOLIT ALKORDESIGN
![]() ![]() Disclaimer. |
RENOLIT France - 5 rue de la Haye - CS 13943 95733 Roissy CDG Cédex - FRANCE - Tel : +33 1 41 84 30 27 - Fax : +33 1 49 47 07 39 |