
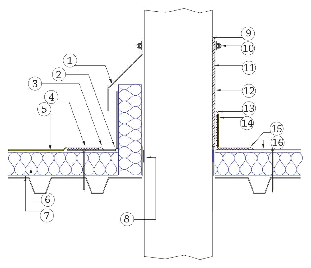
Filter
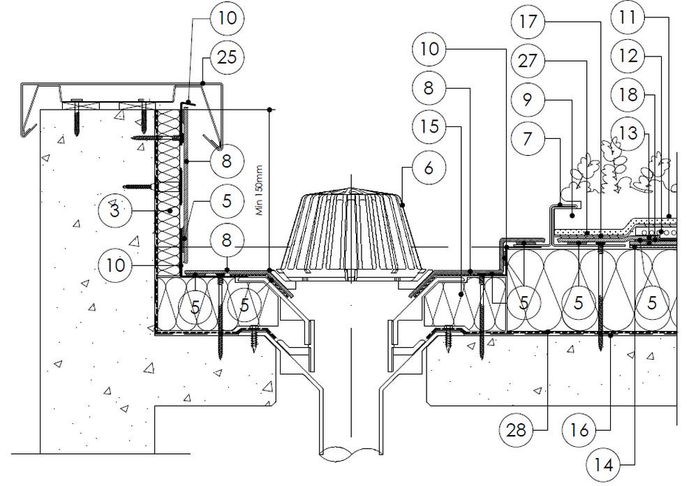
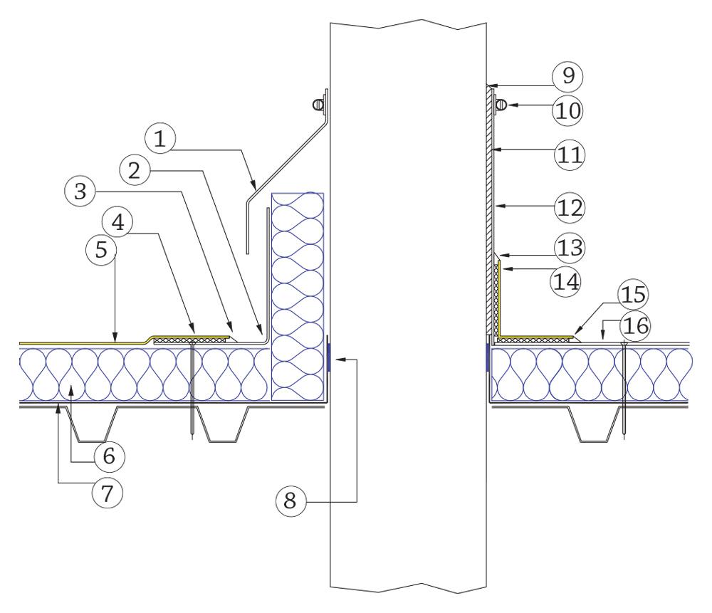
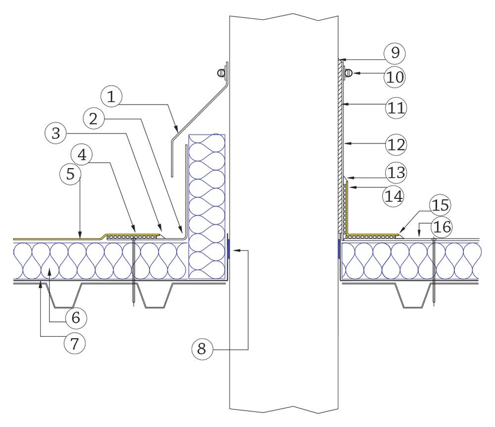
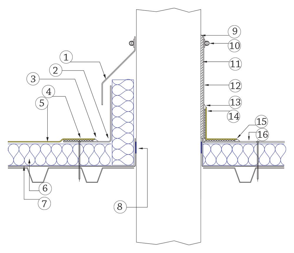
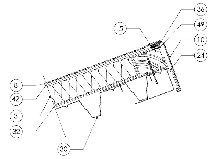
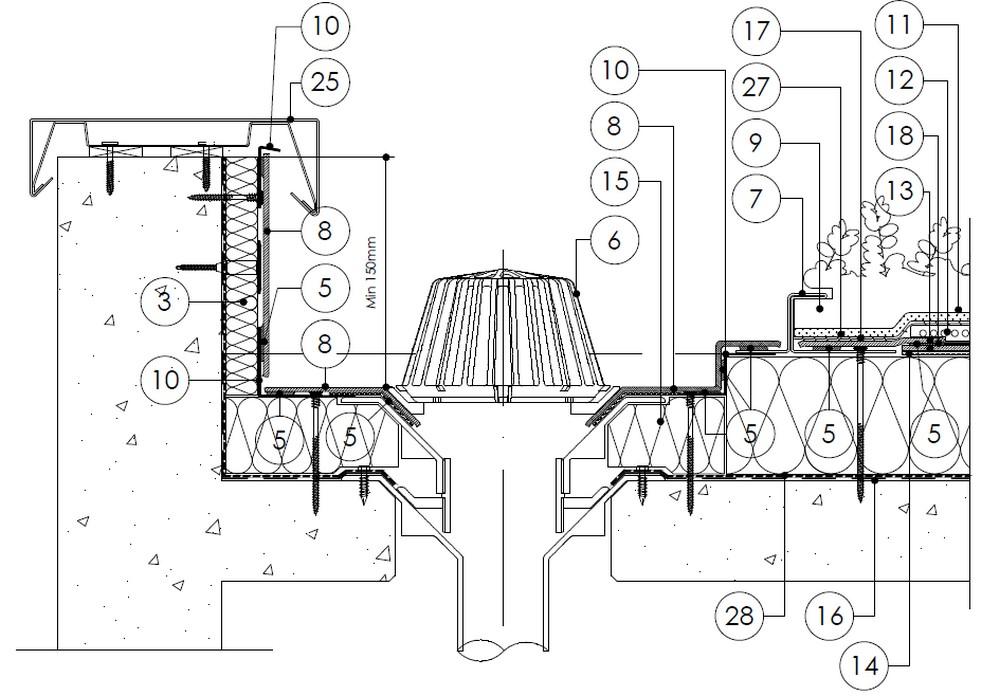
- RENOLIT ALKORPLAN - General RENOLIT ALKORPLAN F- Mechanical fastened RENOLIT ALKORPLAN A- Adhered RENOLIT ALKORPLAN L- Ballasted RENOLIT ALKORGREEN RENOLIT ALKORDESIGN RENOLIT ALKORSOLAR
| Disclaimer. |
RENOLIT (UK) Cramlington Ltd
Station Road, Cramlington, Northumberland NE23 8AQ - United Kingdom T +44 1670 718283 - F +44 1670 590096 - renolit.cramlington@renolit.com Other countries: RENOLIT Belgium N.V. - Export Dpt. - Industriepark De Bruwaan 43 - 9700 Oudenaarde Tel. +32 (0)55/33.98.51 Fax. +32(0)55/31.86.58 |




